
1、產品功能特點;
2、控制方式多樣;
3、清洗簡單,可靠性高;
4、清洗無需斷流,維護、操作簡單;
5、單臺流量最可做9300 m3/h;
6、適用于工況較復雜,以及含油水系統。
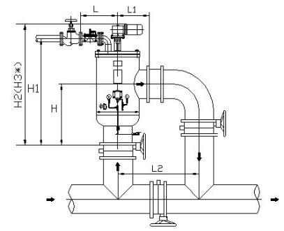
FNC-LS基本性能:
1、 單臺流量: 25m3/h- 9300m3/h,更大流量可由多個單臺
并聯
2、最大工作壓力:4.0 MPa
3、最小工作壓力:0.2MPa
4、最高工作溫度:70℃
5、過濾精度:100~5000um
6、控制方式:壓差、定時及手動控制
7、清洗方式:刷式
8、控制電壓:交流220V
9、額定操作電壓:三相、220V、380V、50HZ
